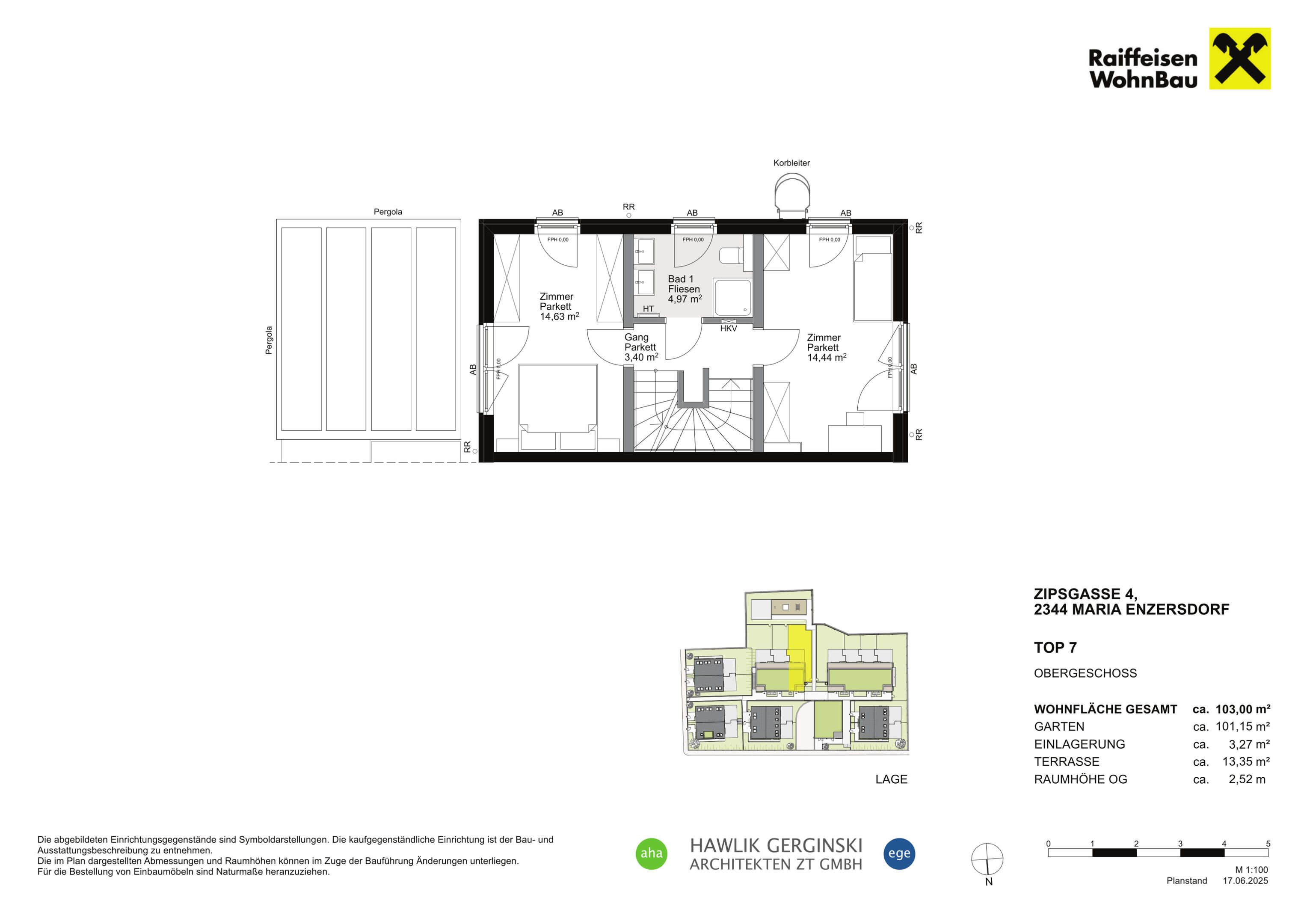
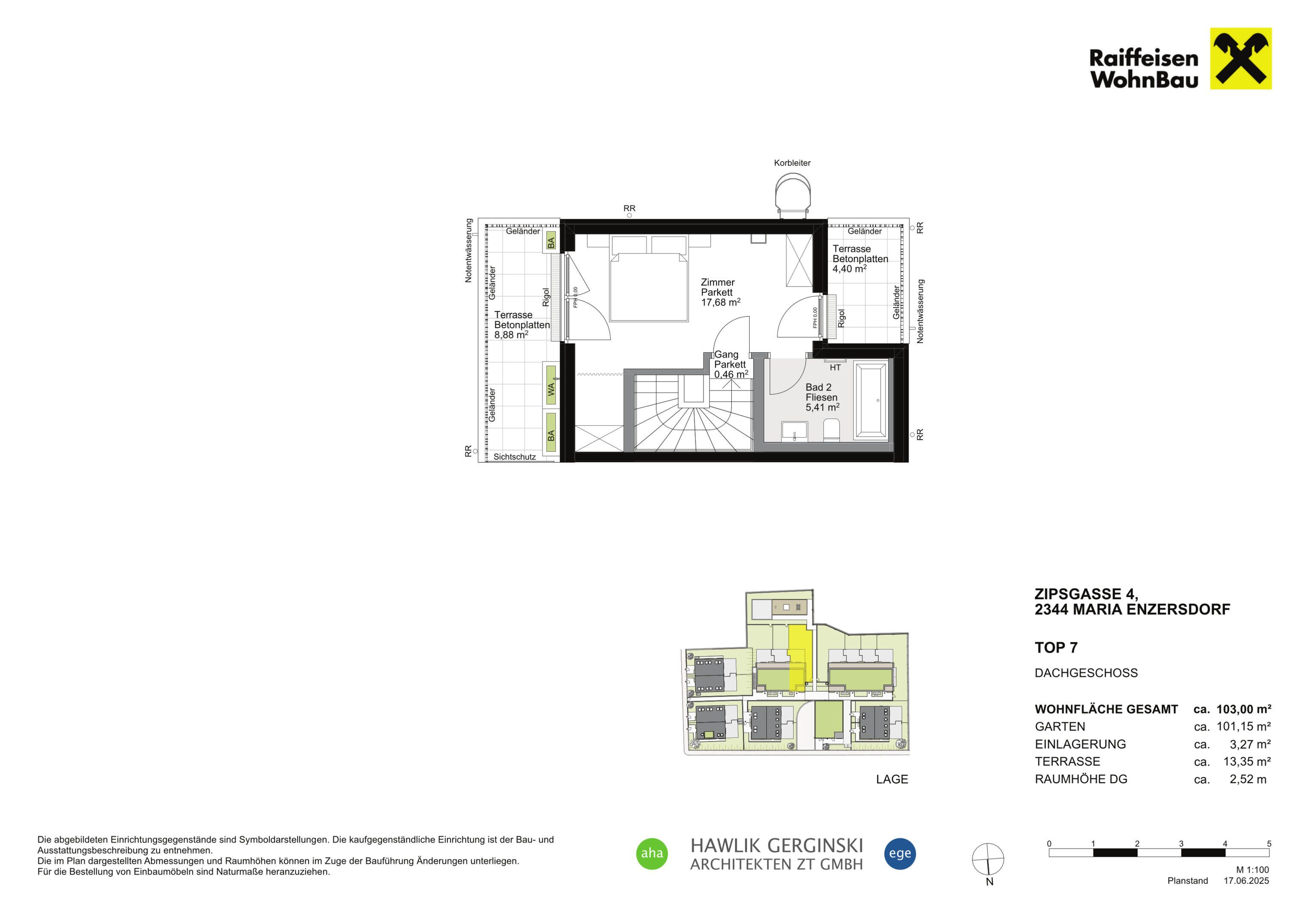
Zipsgasse 4
2344 Maria Enzersdorf
2344 Maria Enzersdorf
House Top 7
Quality Living in the center of Maria Enzersdorf.
- Object number:
- 12517
- Rooms:
- 4
- Area:
- 103.00 m²
- Purchase price:
- Reserved
- Status:
- Under construction
Contact
Christina Baumgartner
Property enquiry 12517
Key figures
- Type of contract
- Property for sale
- Type of property
- House
- Rooms
- 4
- Living area
- 103.00 m²
- Terrace area
- 38.15 m²
- Garden area
- 101.15 m²
- Cellar
- 3.27 m²
- Year of construction
- 2024
Costs
- Purchase price
- Reserved
Features
- underfloor heating
- air source heat pump
- bicycle storeroom
- storage room
- external sun protection
- rolling shutters
- double glazing windows
- children playground (indoor / outdoor)
Description
2344 Maria Enzersdorf, Zipsgasse 4 I Quality living in the center of Maria Enzersdorf. I park view | low traffic location | practical infrastructure | © Raiffeisen WohnBau | living.simply.done. | www.raiffeisen-wohnbau.at
Map
Für die Kartendarstellung wird Google Maps benötigt. Details entnehmen Sie bitte unserer Datenschutzerklärung.